项目名称:徐州沛县地下人防指挥所新建工程项目
项目地址:徐州沛县
项目时间:2009年11月
委托单位:中交通力建设股份有限公司
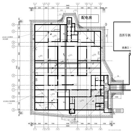
项目概况:本项目位于沛县新城区境内,汉邦路西,药检局南。西侧地下室外墙距离围墙约5m,围墙外侧为某小区内道路。北侧地下室外墙距离围墙3.3m~11.5m,围墙外侧为药监局,其建筑物距离本基坑工程较远。北侧本场地内配电房为保留建筑,且紧邻基坑,需保护。基坑东侧为既有建筑——沛县人防地面指挥中心,框架结构,地上九层,地下一层,预制管桩桩基础,本工程地下室外墙距沛县人防地面指挥中心7.6m。南侧为规划道路,目前已修建完成,为主要施工进出道路,地下室外墙外边线局部紧邻现有围墙。基坑周长约200米,面积2380平方米,基坑开挖深度约9米。
设计内容:编制专业建设工程初步设计文件(含初步设计概算)、施工图设计文件服务。
现场图片
图纸
