项目名称:徐州市三环北路煤港路加固设计
项目地址:徐州
项目时间:2019年10月
委托单位:中建三局集团有限公司
项目概况:徐州市三环北路煤港路地道采用明挖顺作法施工。道路节段间设置2cm变形缝,采用外贴式橡胶止水带与中埋式钢边橡胶止水带双道防水,变形缝中填充中密度聚乙烯泡沫板。无抗拔桩,采用结构自重进行抗浮。地道地面出现涌水现象,特别在冬季路面积水结冰,严重影响交通安全,详见下图。出现涌水现象的位置为桩号AK0+290处,即节段MJD09和节段MJD10间的变形缝位置处。施工方将出水点附近路面结构凿除,并将涌出的地下水引入路侧排水沟,涌水量较大。
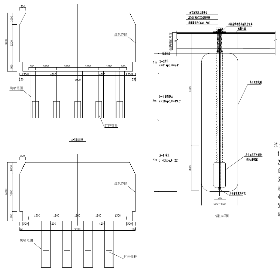
设计内容:根据现场情况提供加固方案,避免道路节段间的不均匀沉降。

现场照片

涌水位置

、
加固设计
